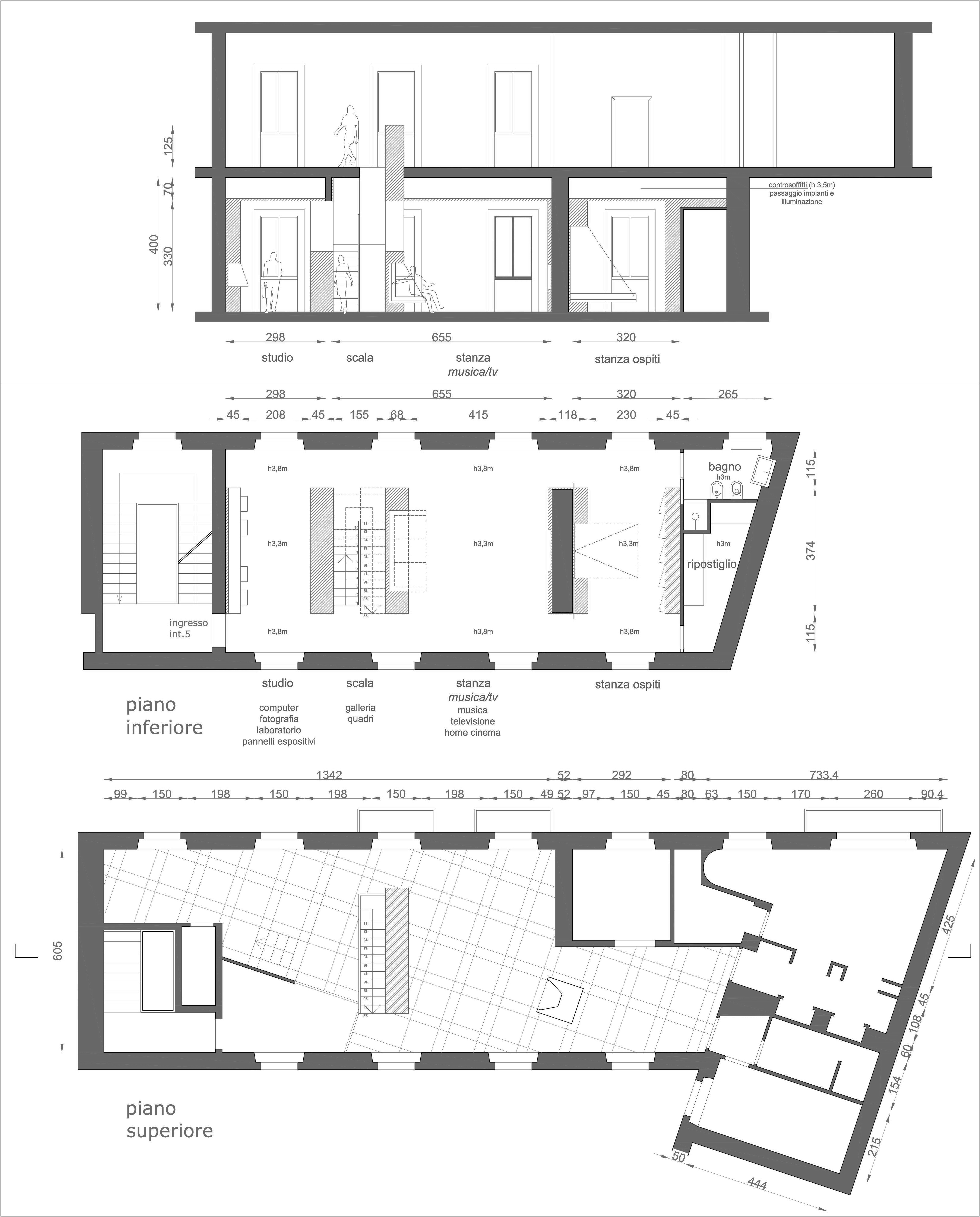
Progetto: Umberto Cao e Mattia Darò – realizzazione pareti attrezzate Cristina Riva
Un appartamento in un edifico residenziale degli anni Trenta del secolo scorso trasformato in uno studio open space suddiviso da pareti attrezzate e collegato da una scala interna alla abitazione nel piano superiore






